新築一戸建
宮前区東有馬1丁目 新築
- 所在地
- 川崎市宮前区東有馬1丁目12-57
- 交通
- 東急田園都市線「鷺沼」駅 バス7分「宮崎台小学校前」停歩8分
5,680万円(税込)
オープンハウス
10月11日(Sat)〜10月13日(Mon) 10:00〜15:00
建物完成しました((°∀°)) 駐車場2台以上可能です♬
OUTLINE
物件概要
所在地 | 川崎市宮前区東有馬1丁目12-57 | ||
---|---|---|---|
交通 | 東急田園都市線「鷺沼」駅 バス7分「宮崎台小学校前」停歩8分 | ||
価格 | 5,680万円(税込) | ||
物件名称 | 宮前区東有馬1丁目 新築 | 物件番号 | 3093 |
物件種別 | 新築一戸建 | 販売棟数 | 全1棟 今回販売1棟 |
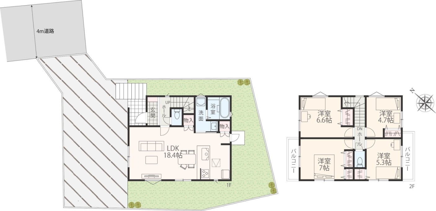
土地面積 | 147.22㎡(44.53坪) | 建物面積 | 95.43㎡(28.86坪) |
間取 | 4LDK | 建物構造 | 木造 22階建 |
完成 | 2025年10月完成済 | 接道状況 | 北 4.50M |
都市計画 | 市街化区域 | 地目 | 宅地 |
用途地域 | 第一種低層住専 | 建ぺい率 | 50% |
容積率 | 80% | 現況 | 完成済 |
取引態様 | 媒介 | 小学区 | 川崎市立宮崎小学校 ※1 |
中学区 | 川崎市高津区立宮崎中学校 ※1 | 管理番号 | 202510071430 |
設備 | 都市ガス・上水道・下水道・電力 |
※1 実際の通学区域とは異なる場合がありますので必ず各学校毎の通学区域住所をご確認ください。
INQUIRY
資料請求
- <WEBからお問い合わせ>
- <お電話でのお問い合わせ>
-
044-667-1192- [受付時間]AM10:00~PM7:00
- [定休日]火曜日・水曜日
※定休日(火曜日・水曜日・年末年始等)は
ご連絡が遅くなる場合もございます。