新築一戸建
北野川2号棟
- 所在地
- 川崎市高津区北野川
- 交通
- JR南武線「武蔵新城」駅 徒歩27分
4,780万円(税込)
OUTLINE
物件概要
| 所在地 | 川崎市高津区北野川 | ||
|---|---|---|---|
| 交通1 | JR南武線「武蔵新城」駅 徒歩27分 | ||
| 交通2 | 東急田園都市線「溝の口」駅 バス6分「橘出張所前」停歩10分 | ||
| 価格 | 4,780万円(税込) | ||
| 物件名称 | 北野川2号棟 | 物件番号 | 3187 |
| 物件種別 | 新築一戸建 | 販売棟数 | 全2棟 今回販売2棟 |
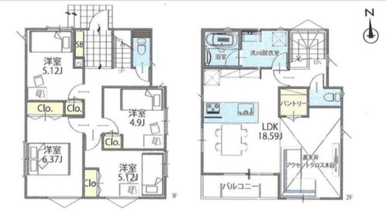
| 土地面積 | 129.52㎡(39.17坪) | 建物面積 | 97.18㎡(29.39坪) |
| 間取 | 4LDK | 建物構造 | 木造 2階建 |
| 完成 | 2025年12月完成予定 | 接道状況 | 西 4.00M |
| 都市計画 | 市街化区域 | 用途地域 | 第一種低層住専 |
| 建ぺい率 | 50% | 容積率 | 80% |
| 建築確認番号 | 第25UDI1K建00860号 | 現況 | 建築中 |
| 駐車場 | あり | 取引態様 | 媒介 |
| 小学区 | 川崎市立野川小学校 ※1 | 中学区 | 川崎市宮前区立野川中学校 ※1 |
| 管理番号 | 202512011355 | ||
| 設備 | 公営水道、本下水、東京電力 全周囲24時間換気システム/高断熱型Low-eガラス/防犯・断熱仕様玄関ドア/カラーテレビインターフォン/低ホルムアルデヒド/ビルトイン食器洗浄乾燥機/浄水器内蔵型ハンドシャワー/システムバス保温浴槽/浴室換気乾燥暖房/シャワートイレ |
||
※1 実際の通学区域とは異なる場合がありますので必ず各学校毎の通学区域住所をご確認ください。
INQUIRY
資料請求
- <WEBからお問い合わせ>
- <お電話でのお問い合わせ>
-
044-667-1192- [受付時間]AM10:00~PM7:00
- [定休日]火曜日・水曜日
※定休日(火曜日・水曜日・年末年始等)は
ご連絡が遅くなる場合もございます。

