中古一戸建(中古戸建)
フルリフォーム済 中古戸建
- 所在地
- 川崎市高津区東野川2丁目
- 交通
- JR南武線「武蔵新城」駅 バス15分「野川くぬぎ坂」停歩2分
3,580万円(税込)
内装フルリフォーム済!!!!
OUTLINE
物件概要
| 所在地 | 川崎市高津区東野川2丁目 | ||
|---|---|---|---|
| 交通1 | JR南武線「武蔵新城」駅 バス15分「野川くぬぎ坂」停歩2分 | ||
| 交通2 | JR南武線「武蔵中原」駅 バス15分「野川くぬぎ坂」停歩2分 | ||
| 価格 | 3,580万円(税込) | ||
| 物件名称 | フルリフォーム済 中古戸建 | 物件番号 | 3226 |
| 物件種別 | 中古一戸建(中古戸建) | 土地面積 | 64.41㎡(19.48坪) |
| 私道面積 | 183.66㎡ | 建物面積 | 72.43㎡(21.91坪) |
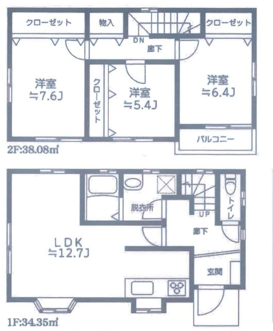
| 間取 | 3LDK | 建物構造 | 木造 3階建 |
| 完成 | 1994年10月 | 接道状況 | 南 4.00M
東 4.00M |
| 都市計画 | 市街化区域 | 地目 | 宅地 |
| 用途地域 | 第一種住居地域 | 建ぺい率 | 60% |
| 容積率 | 200% | 現況 | 空家 |
| 駐車場 | あり | 引渡し時期 | 即入居可 |
| 取引態様 | 媒介 | 小学区 | 川崎市立野川小学校 ※1 |
| 中学区 | 川崎市宮前区立野川中学校 ※1 | 管理番号 | 202601080940 |
| 設備 | 都市ガス・公営水道・本下水 | ||
※1 実際の通学区域とは異なる場合がありますので必ず各学校毎の通学区域住所をご確認ください。
INQUIRY
資料請求
- <WEBからお問い合わせ>
- <お電話でのお問い合わせ>
-
044-667-1192- [受付時間]AM10:00~PM7:00
- [定休日]火曜日・水曜日
※定休日(火曜日・水曜日・年末年始等)は
ご連絡が遅くなる場合もございます。



